Projekty          O nás          Kontakt










Most pri Bratislave


autor / Martin Kvitkovský, Martin Varga
spolupráca / Jakub Hruška, Lukáš Rypák
miesto / Most pri Bratislave, SR
úžitková plocha / 190 m2
klient / súkromný
štúdia / 2019
realizácia / 2022
foto / Peter Čintalan / Dynameet

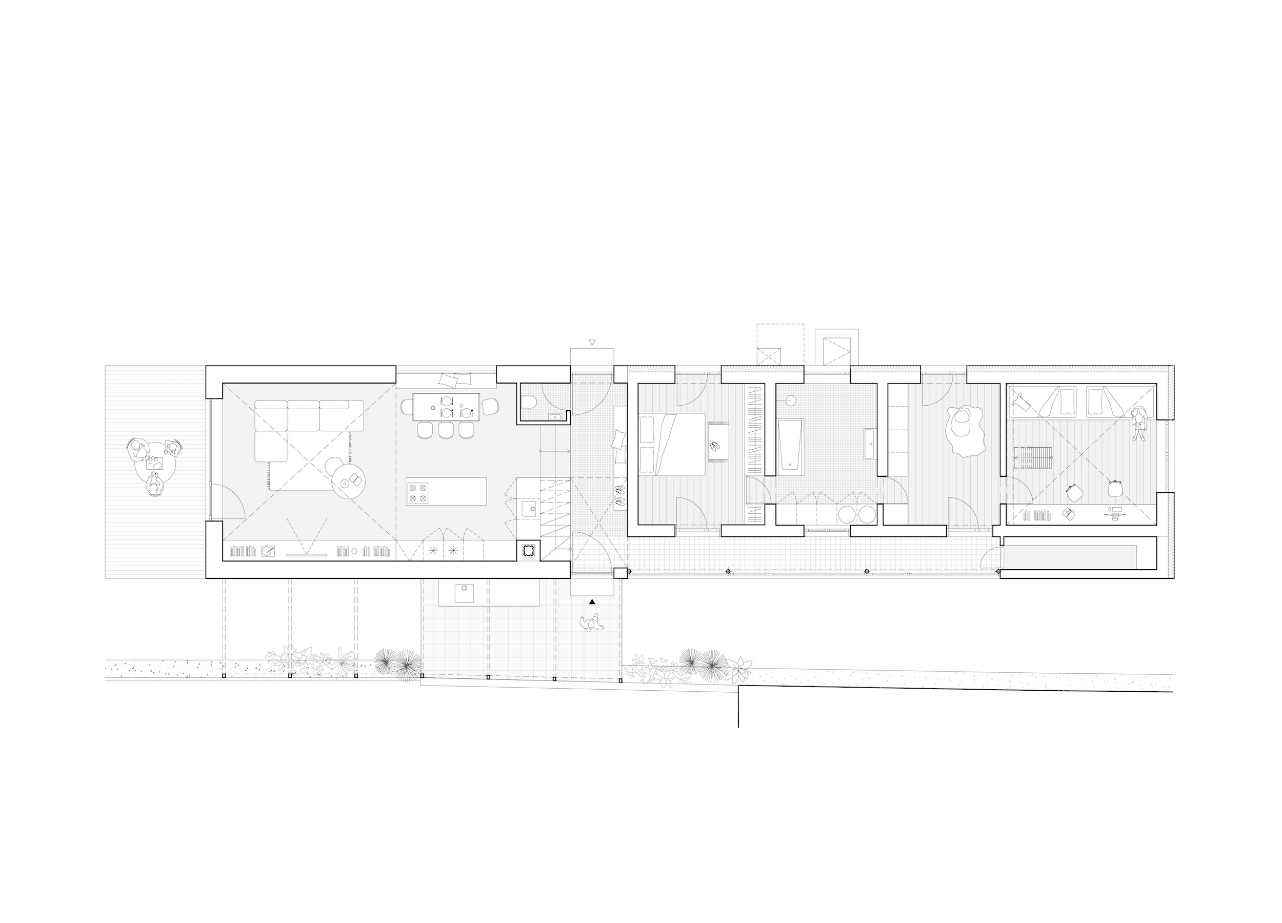
Pokračujeme v logike pôvodného domu a typický dedinský slíž predlžujeme o ďalších 12 metrov. Problém priechodných izieb v starom dome vyriešilo pridanie klasického krytého gánku a niekdajší prejazd so slepou stenou susedného domu sa postupne zmení na tienistú východnú záhradu s letnou kuchyňou na jej konci. Nová časť domu, v ktorej sú umiestnené všetky denné miestnosti, umožňuje priamy kontakt s rozľahlou a otvorenou južnou záhradou. V rámci priestoru komponujeme výhľady a priehľady. Z izby do záhrady, z izby do izby a vďaka minimálnej šírke domu, aj zo záhrady do záhrady. Južný portál do otvorenej krajiny, západné okno slúžiace zároveň ako lavica pri jedálenskom stole a v podkroví jeho pandant, osvetľujúci pracovňu vloženú do otvoreného priestoru. Enfiláda medzi izbami v starej časti domu a na konci detská izba s herňou pod strechou. Jeden dom, rôzne situácie, materiály a atmosféry.