Projekty          O nás          Kontakt










Mestská radovka


autor / Martin Kvitkovský, Martin Varga, Jakub Hruška, Martina Kováčová
miesto / kdekoľvek, SR
úžitková plocha / 135 m2
klient / Ministerstvo životného prostredia
súťaž / 2023

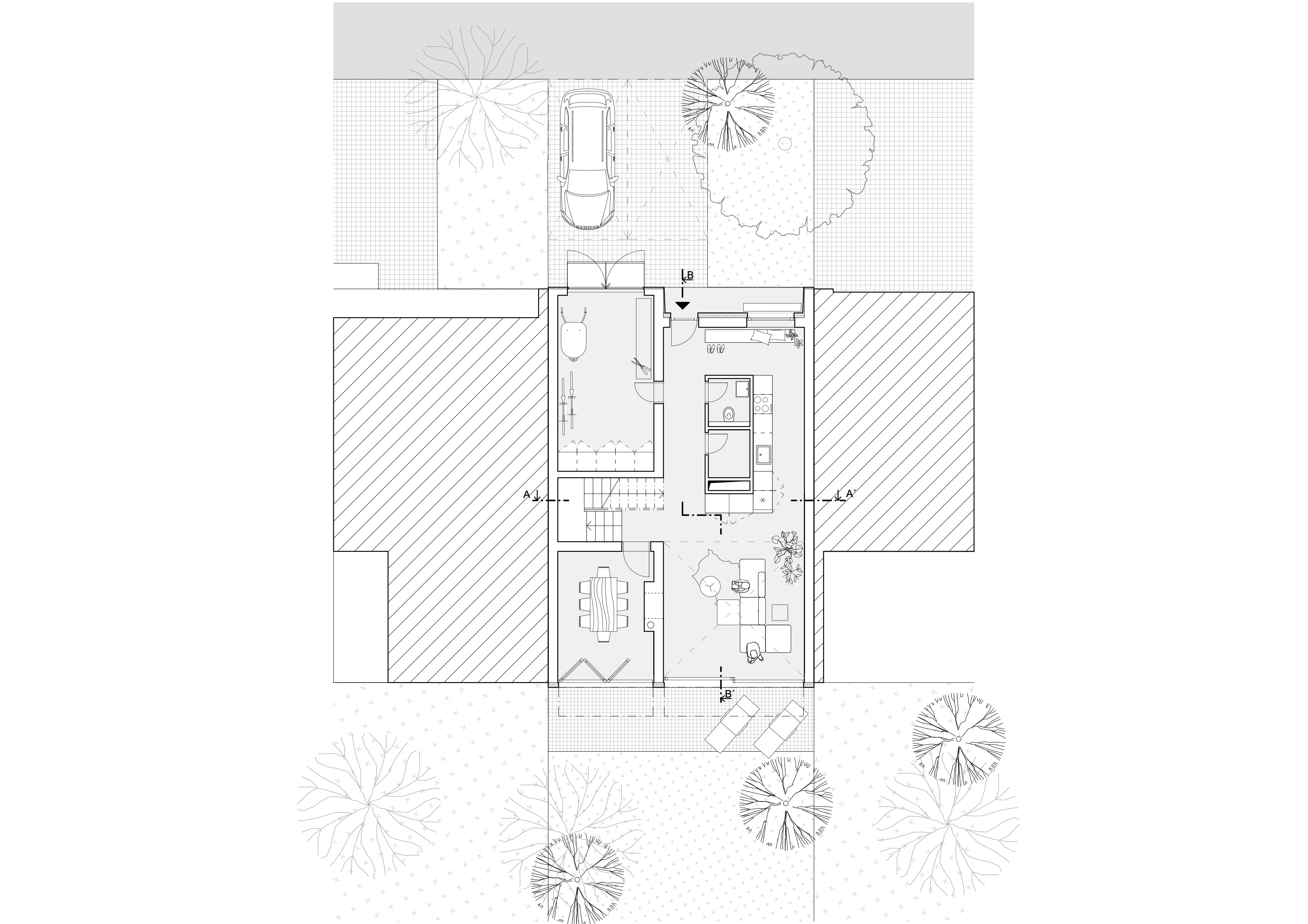
Mestská radovka sa stala pevnou súčasťou typológie obytných domov medzi 70. až 90. rokmi 20. storočia. Na území Slovenska sa nachádza nespočetné množstvo jej variácii, ktoré sa líšia v počte podlaží, tektoniky hmoty, materiálovom prevedení, či tvare strechy. Medzi hlavné výhody mestskej radovej zástavby patrí redukcia počtu ochladzovaných fasád a skromná šírka parcely potrebná na výstavbu, s ktorou sa spája úspora pri budovaní infraštruktúry a inžinierskych sietí. 

Od začiatku sa snažíme redukovať zásahy na nevyhnutné minimum a odstraňujeme iba, z dnešného pohľadu konfliktné alebo nefungujúce miesta v dispozícii domu. Fragmentovaný priestor prepájame do jedného celku. Najväčším zásahom je „obetovanie“ jednej z izieb a otvorenie stropu nad dennou časťou. Tento krok umožnil vytvorenie halového priestoru cez dve podlažia. Akési vertikálne jadro, ktoré vizuálne prepája život na oboch podlažiach domu a dáva predpoklad vzniku netradičných možností pre rodinné interakcie.  

K uličnej fasáde pristupujeme konzervátorským spôsobom a nové prepláštenie preberá pôvodný výraz domu. Kabrincový obklad na výšku celého podlažia, hrubozrnné omietky a tmavé rámy s výplňami otvorov dokázali obstáť v čase a nie je nevyhnutne potrebná takmer žiadna zmena. K fasáde smerujúcej do privátnej záhrady sme pristupovali rozdielne a jedno okno uzatvárame z dôvodu dosiahnutia potrebnej atmosféry v prevýšenom priestore v interiéri. Plná plocha južnej fasády sa zároveň stáva podkladom pre stále sa obmieňajúcu hra svetla a tieňa pod konármi vzrastlých stromov

Materiálová dichotómia kombinovaná s predstavou pôvodného delenia domu na dennú a nočnú zónu, umiestnenú každú na vlastnom podlaží, ukrýva v interiéri nečakané priestorové vzťahy.