Projekty          O nás          Kontakt










Meštiansky dom Pracháreň


autor / Martin Kvitkovský, Martin Varga
spolupráca / Bellušove ateliéry_FADSTU / Lukáš Rypák, Karol Volf,
Veronika Vaňová, Nikola Chriašteľová
miesto / Trnava, SR
úžitková plocha / 1532 m2
klient / mesto Trnava
štúdia / 2020
projekt /2021-2022

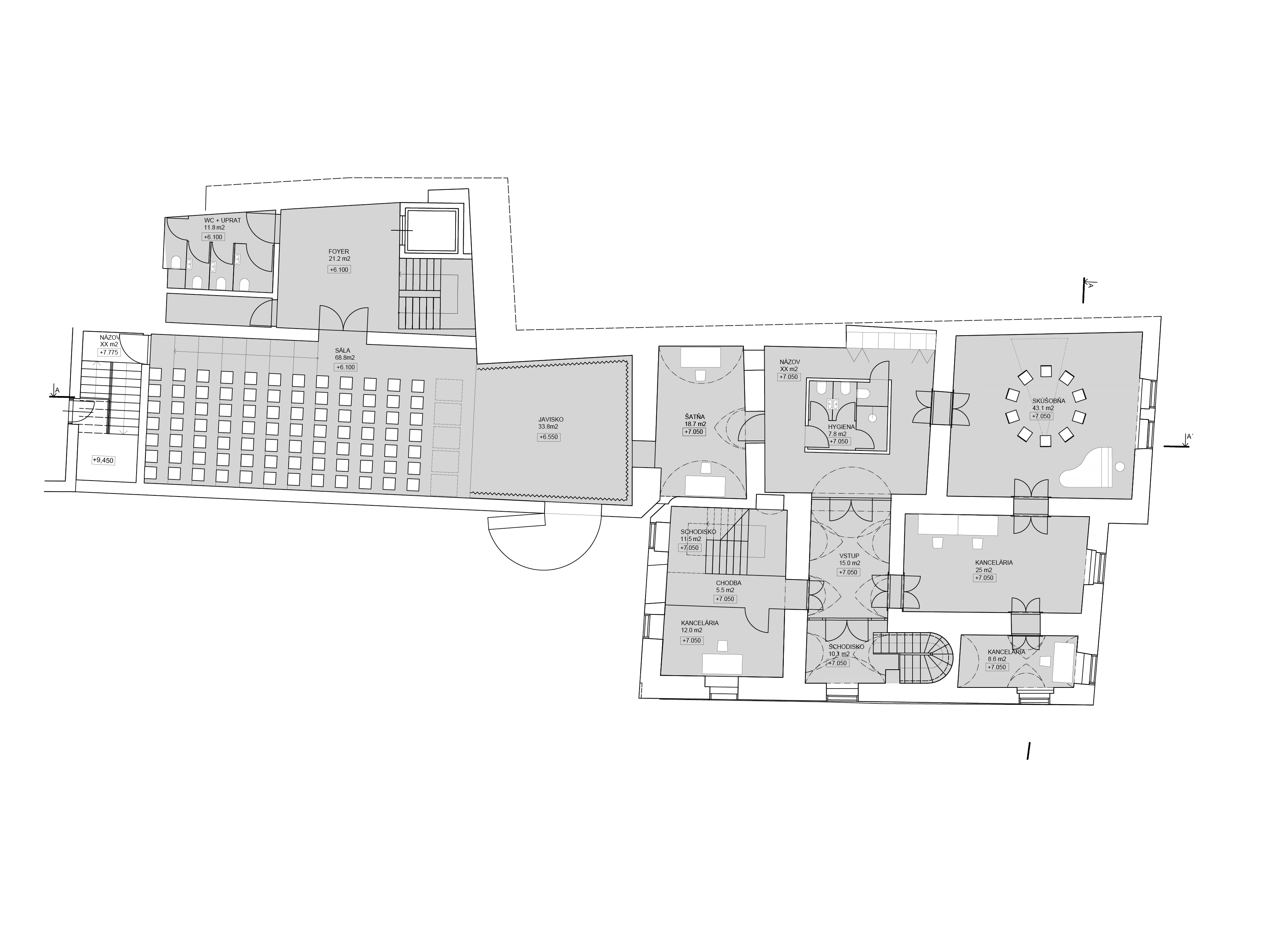
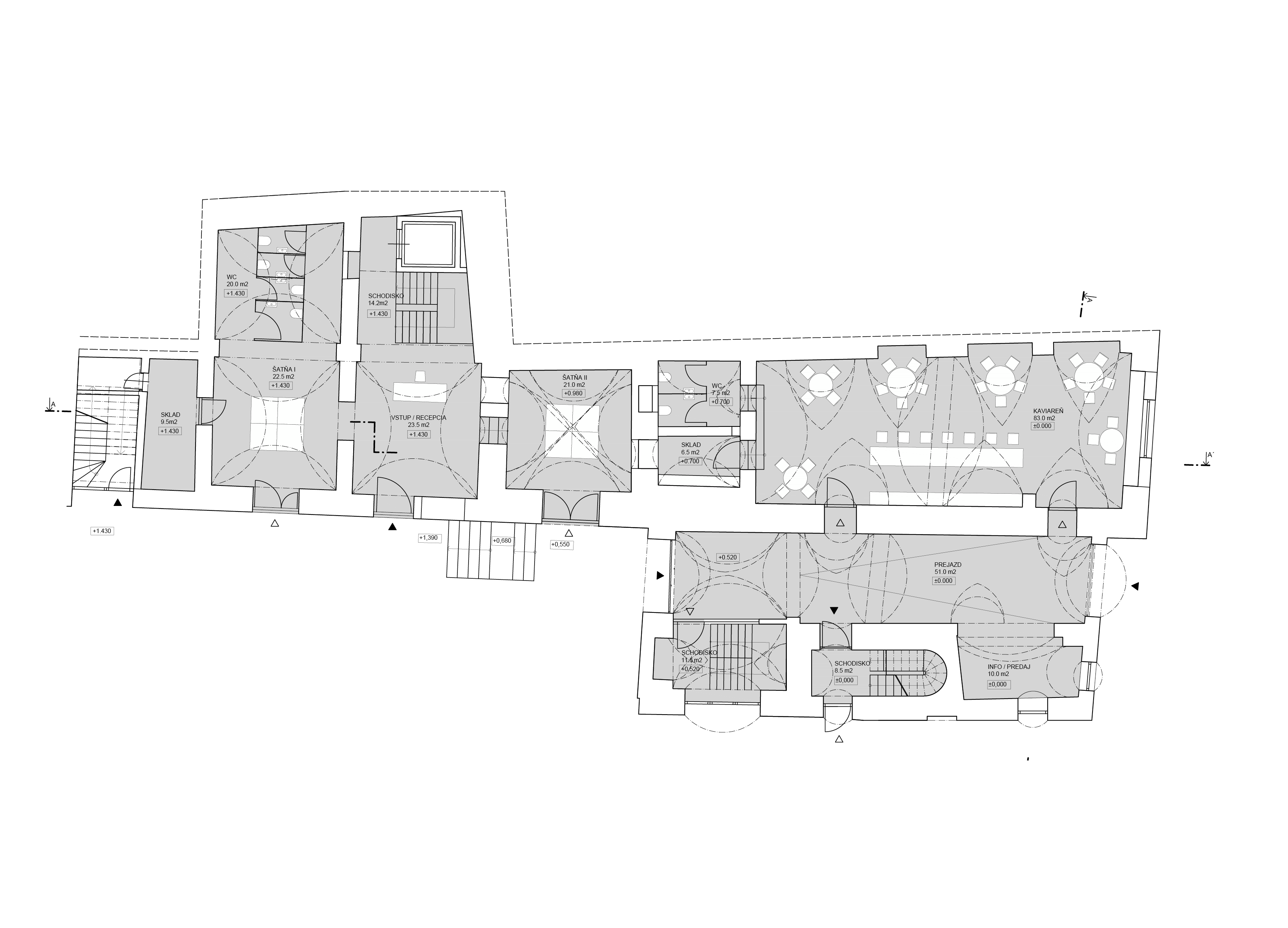
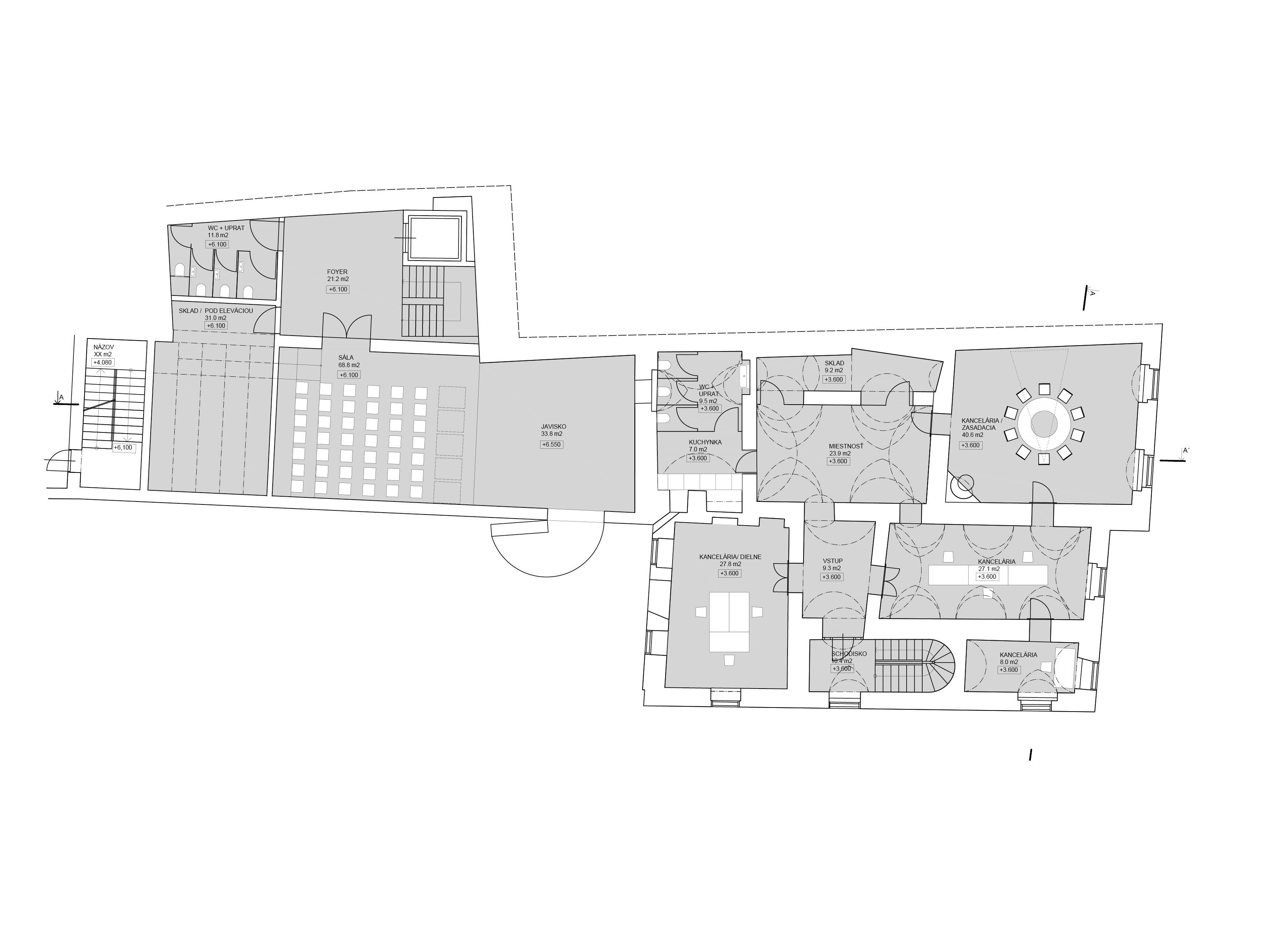
Rekonštrukcia Národej kultúrnej pamiatky Meštiansky dom Pracháreň, nachádzajúci sa v centre Trnavy. Exponovaný nárožný objekt, ktorý má za sebou mnoho vrstiev vývoja. Za postmodernou fasádou zo začiatku 2000-ich rokov sú stále prítomné renesečné časti domu.
Úlohou bola pamiatková obnova historicky hodnotných častí objektu, prinavrátenie zaniknutých prvkov, pri súčasnej funkčnej náplni. Za generickou zvlnenou fasádou bočného krídla sa budú nachádzať priestory nového bábkového divadla, v historickej nárožnej budove skúšobňa a zázemie susedného Divadla J. Palárika. Obnovujeme prejazd z Hlavnej na Radlinského ulicu, drevené výklady a v parteri malú gastroprevádzku (možno opäť ikonický Mliečny bar). V najstaršej, podzemnej časti, budú umiestnené expozičné priestory, či herecký klub. Všetko prepojené rôznymi spôsobmi a v rozličných úrovniach. Historický dom sa tak stáva akýmsi uzlom nových kultúrnych funkcií.