Projekty          O nás          Kontakt










Gánkový dom


autor / Martin Kvitkovský, Martin Varga, Jakub Hruška, Martina Kováčová
miesto / kdekoľvek, SR
úžitková plocha / 135 m2
klient / Ministerstvo životného prostredia
súťaž / 2023 / 2. miesto (ex aequo)

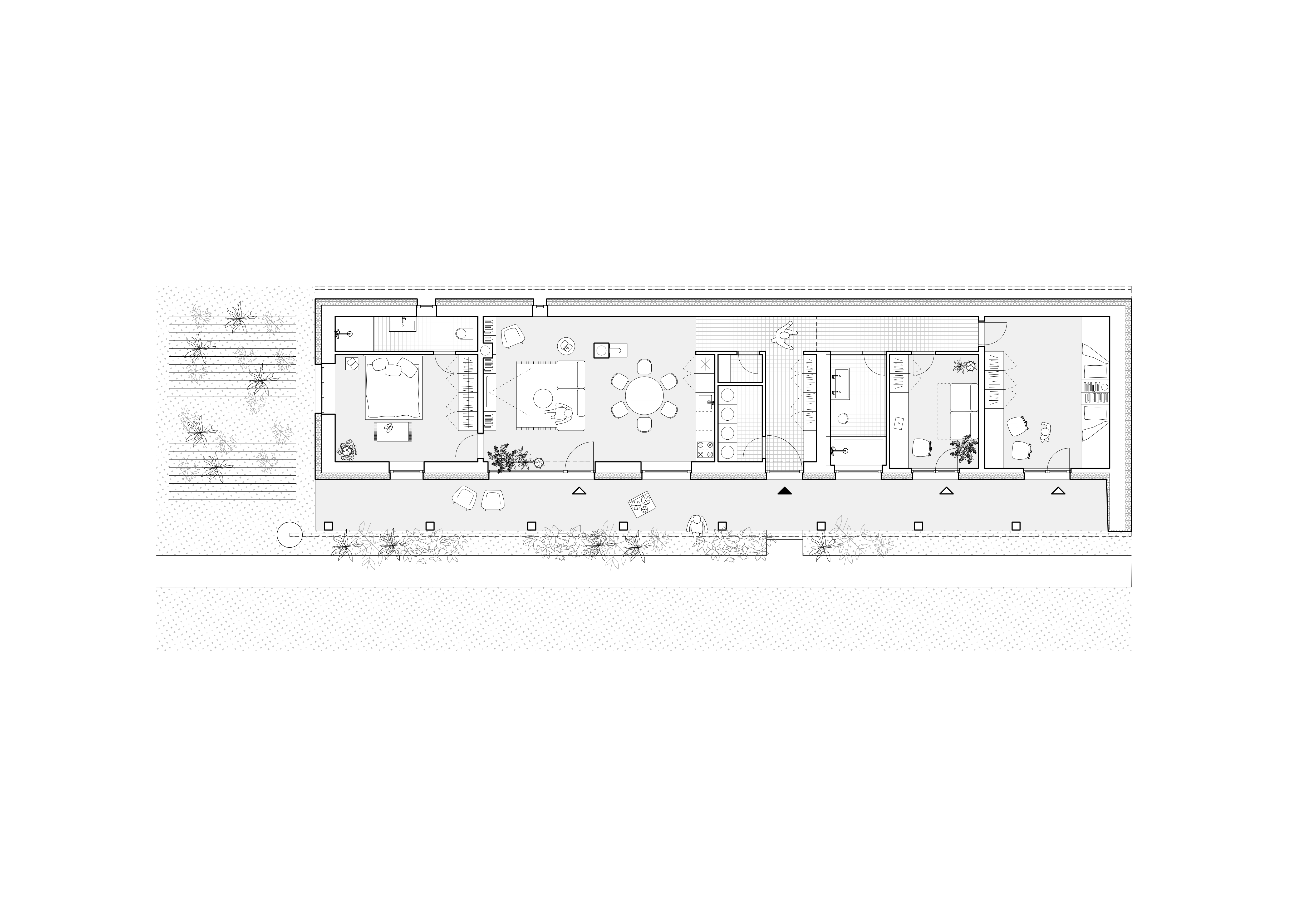
Jednoduchá forma tohto domu dokázala bez väčších problémov fungovať vo všetkých regiónoch Slovenska a jednotlivé varianty tohto typu domu sa od seba odlišujú v princípe iba v detailoch. Spoločným menovateľom pre tento typ je jeho osadenie na parcele, kde jedna stena domu tvorí zároveň hranicu pozemkov. Dispozícia domu ešte stále kopíruje typológiu jednoduchých trojpriestorových dreveníc z 18. storočia. S výnimkou „prednej izby“ sú všetky priestory v dome orientované do gánku a medzipriestoru medzi dvoma susednými domami. Silným momentom celej kompozície je historický princíp postupnej adície ďalších hospodárskych objektov v zadnej časti domu.

Rozhodli sme sa nemeniť a nepotláčať tento výraz, ale práve naopak. Zachovávame celkovú siluetu domu, vrátane polvalbovej strechy. Odstránením hmoty zádveria, očisťujeme gánok a posilňujeme jeho výraz a funkciu exteriérovej chodby.  Nepriechodné izby sú umiestnené do koncových polôh domu, čím redukujeme celkovú dĺžku a plošnú výmeru chodby a „ušetrená“ výmera je presunutá v prospech denných miestností. Celý dom otvárame do gánku francúzskymi oknami s rôznymi spôsobmi otvárania, ktoré odkazujú na pôvodnú proporciu a delenie otvorov Výsadba ovocných stromov  v priestore pred gánkom posilňuje princíp sokratovského domu, ktorý v lete tieni a v zime umožňuje prestup slnečného svetla do hĺbky interiéru. Podbitie gánku je odstránené a jednoduchý plášť keramickej strešnej krytiny je doplnený o sklenené tvarovky, umožňujúce ešte lepšie presvetlenie vnútorných priestorov domu.

Fasáda je doplnená o vrstvu tepelnej izolácie, rovnako ako aj podlahy a strop v úrovni podkrovia. To zostáva ako nezobytnené a naďalej slúži ako prirodzená teplotná bariéra. Základy a nové podlahy sú izolované proti zemnej vlhkosti. Výplne otvorov sú posunuté na okraj pôvodného muriva, aby bola zachovaná proporcia hĺbky ich osadenia.

Návrh pracuje s možnosťou etapizácie, pričom hlavný dôraz bol braný na tri premenné. Finančné prostriedky investora, čas a priestorové nároky na bývanie.  Jadro obnovy gánkového domu predstavuje jeho pôvodná obytná časť, ktorá po rekonštrukcii dokáže fungovať ako plnohodnotné bývanie pre jednotlivca, bezdetný pár alebo mladú rodinu s dieťaťom, ktoré zatiaľ nepotrebuje vlastnú izbu.

Pri zvýšených priestorových nárokoch v budúcnosti, sa môže rekonštruovaná plocha zväčšiť o ďalšie miestnosti v pôvodnej hospodárskej časti. Dom sa tak môže zväčšiť o jednu  alebo dve ďalšie izbu s kúpeľňou. Pokiaľ je pre budúceho užívateľa priorita plošná výmera nového bývania, ale limitom je rozpočet,  môže byť realizovaná etapizácia v zmysle celkovej zmeny dispozície a až v nasledujúcich krokoch pristúpiť k zodolneniu obálky domu.