Projekty          O nás          Kontakt










Exnárova


autor / Martin Kvitkovský, Martin Varga, Jakub Hruška
miesto / Bratislava, SR
úžitková plocha / 68 m2
klient / súkromný
štúdia / 2020

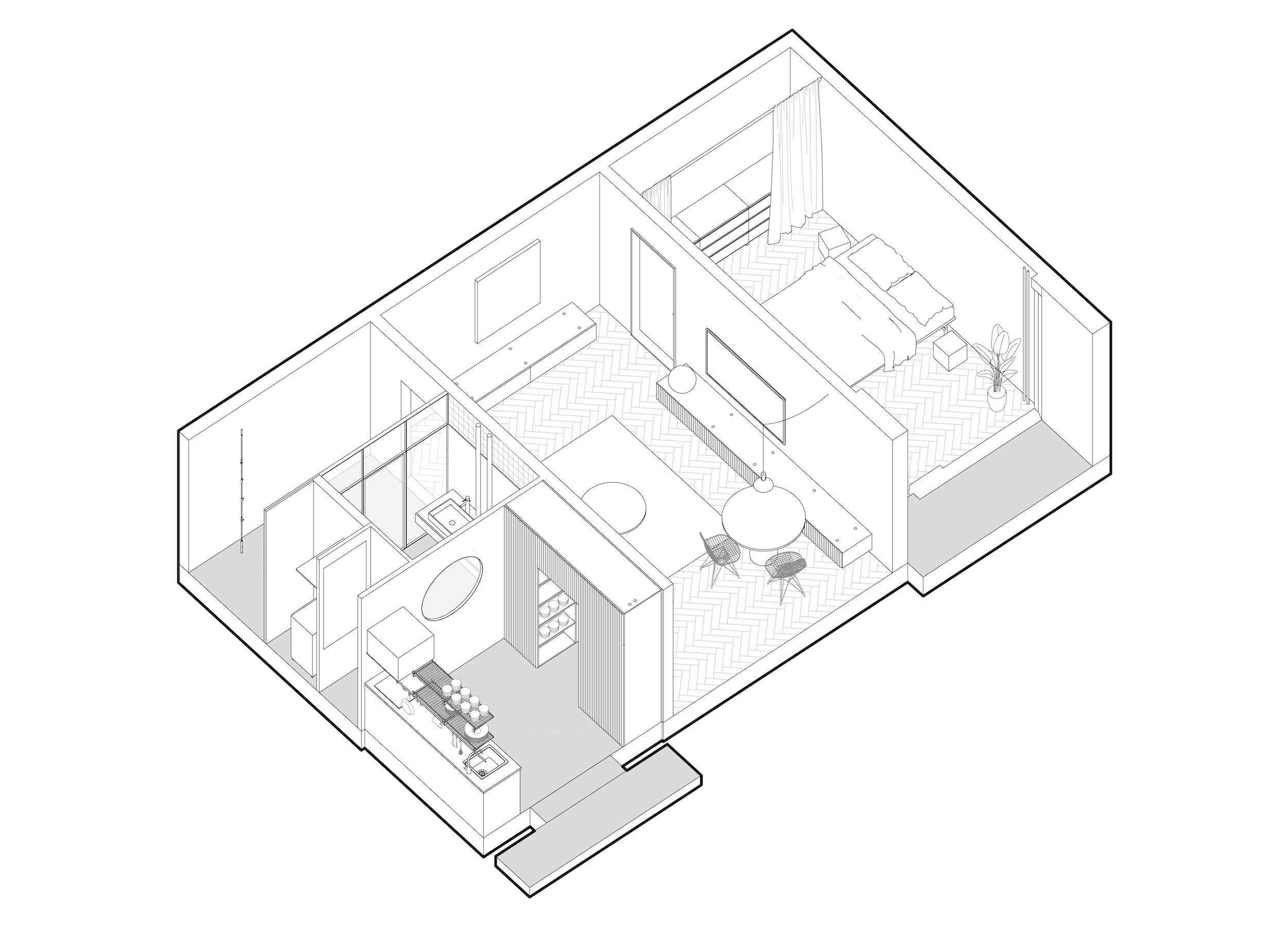
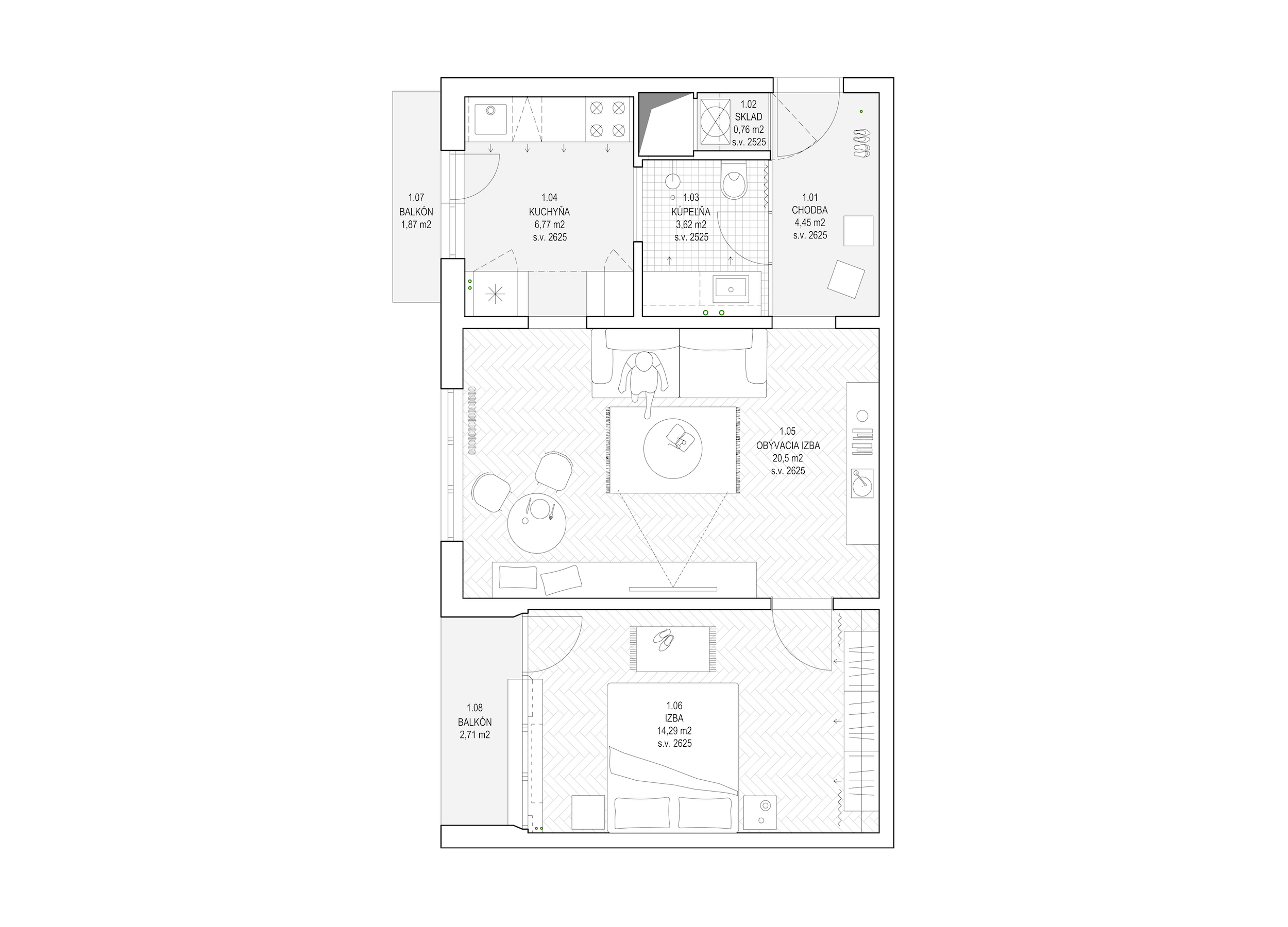
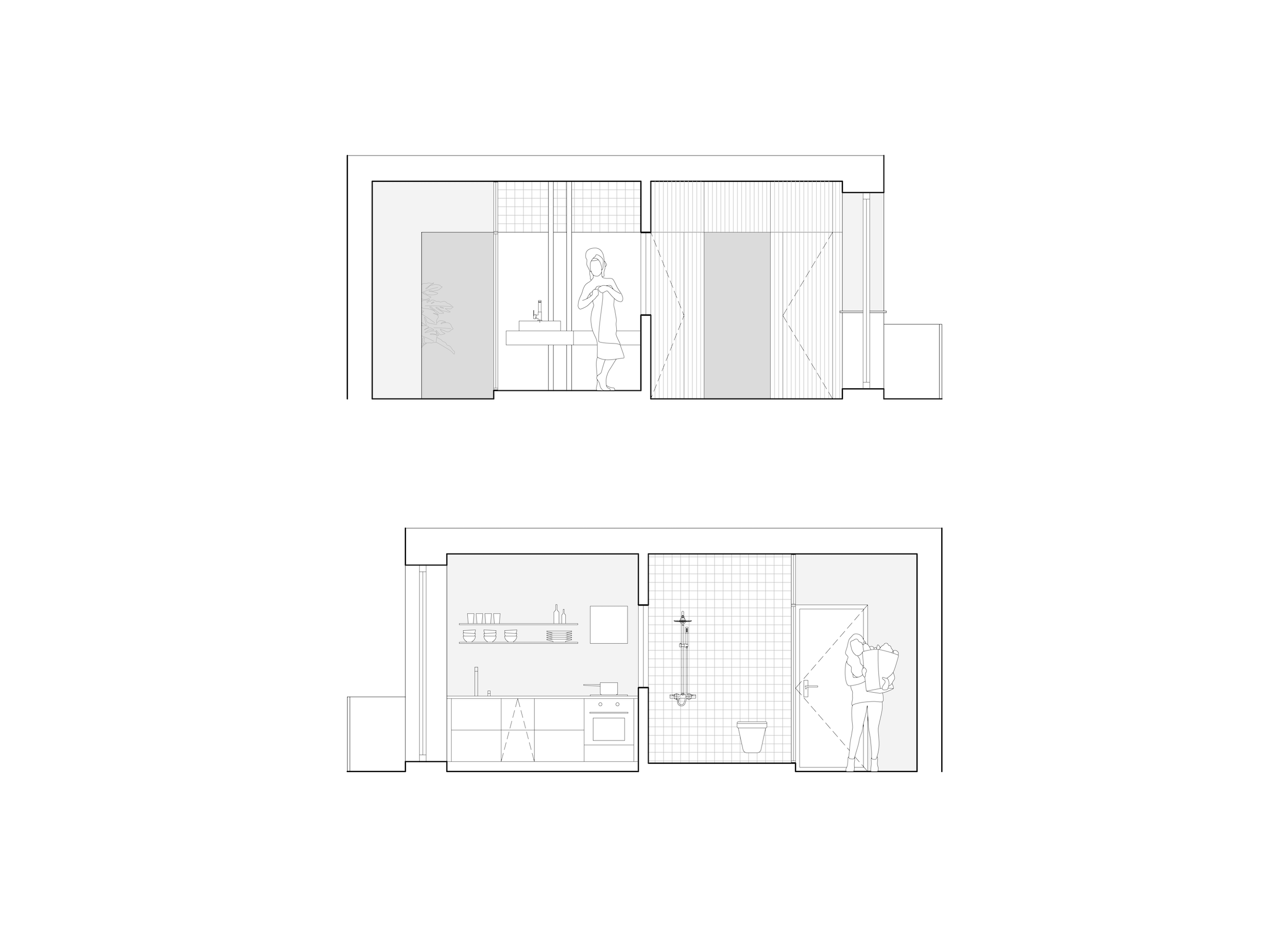
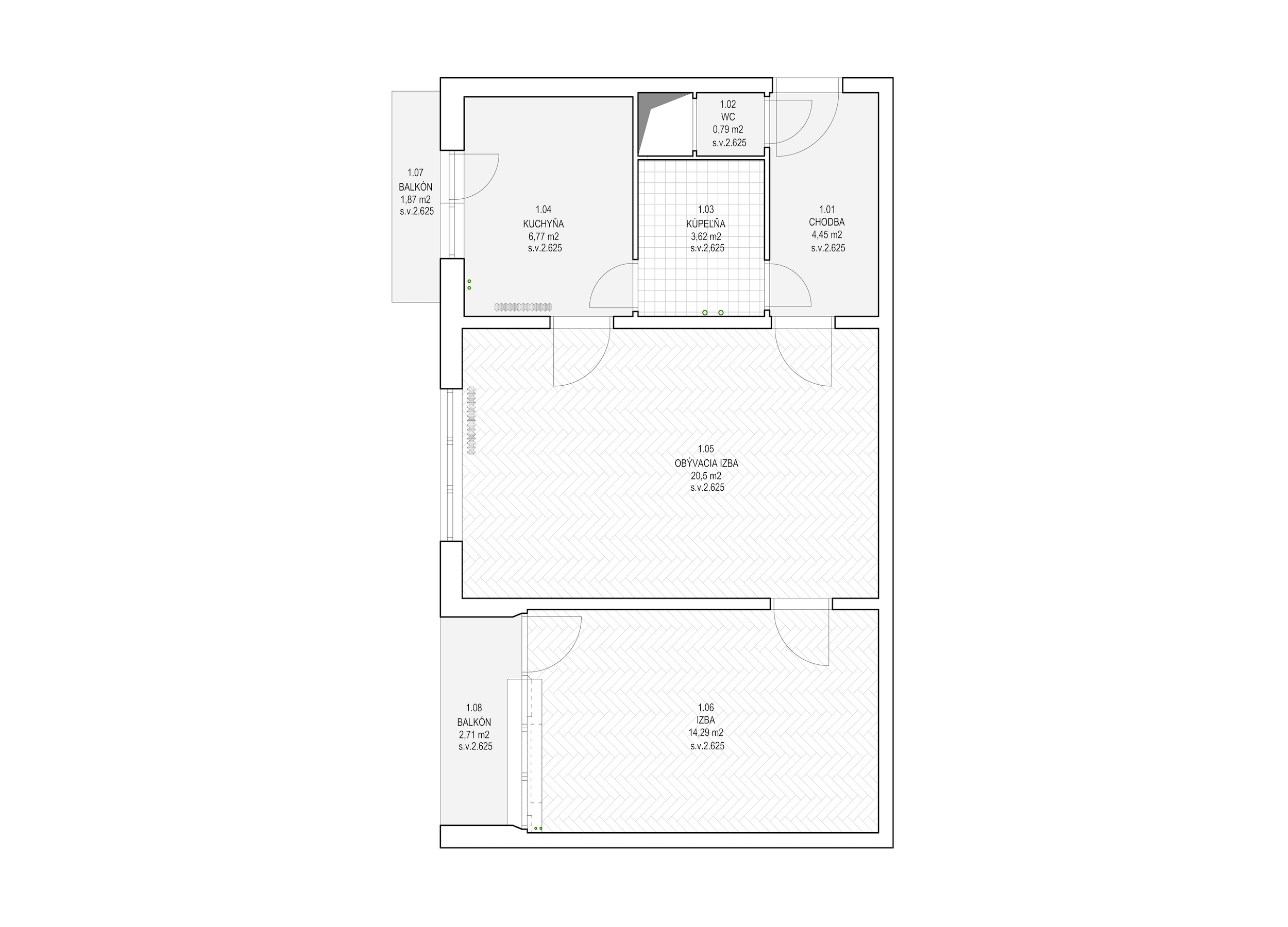
Hlavnou témou rekonštrukcie typického panelového bytu v bratislavskom Ružinove, boli čo najmenšie zásahy do dispozície bytu. Dôvod bol vcelku jednoduchý, kvôli typu použitých predpätých panelov to ani nebolo možné. Jediná dispozičná zmena sa tak udiala v hygienickom jadre. Do novej kúpeľne dostávame denné svetlo, ktoré ďalej prepúšťame cez sklenenú stenu do vstupnej chodby. Pôvodné tmavé priestory sú eliminované a v byte sa otvárajú nové priehľady. Strop je očistený až na podklad a surový povrch panelov tvorí výraznú identitu bytu. Tvrdý výraz betónu je zmäkčený pôvodnými drevenými parketami a monohochromatických linoleom, ktoré odkazuje na originálne riešenia z doby vzniku sídliska. Jedným z problémov bolo zväčšenie pôvodnej minimálnej kuchyne pre súčasné potreby užívateľov. Ako najlepšie sa javilo jej otočenie a pridanie priechodnej zostavy ukrývajúcej spotrebiče, potravinovú skriňu a “kredenc” zároveň. Samotná nízka zostava tak mohla zostať v minimálnom rozsahu bez horných skriniek, čo prispieva k vzdušnosti priestoru. Os prechodu do kuchyne uzatvara jedálenský stôl s dlhou lavicou-komodou, ktorá tvorí dominantný kus nábytku v dennej časti bytu.